GROHE Rapid SL für Wand-WC für schmale Bäder
zoom_out_map
chevron_left chevron_right

GROHE Rapid SL pour WC suspendu pour petites salles de bains

  • Adapté aux petites salles de bains
  • Petit et gain de place
  • Structure en acier autoportante

357,00 CHF HT

357 HT

Confidentialité
Livraison rapide
Droit de retour 30 Jours
Description

GROHE Rapid SL pour WC suspendu pour petites salles de bains

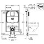
Introduction: Le GROHE Rapid SL est la solution idéale pour les petites salles de bains souffrant de manque d'espace. Avec son cadre en acier autoportant et sa conception compacte, il s'intègre parfaitement dans les petits espaces.

Caractéristiques techniques:

  • Réservoir de chasse de 8 cm avec petite ouverture de révision
  • Hauteur de construction de 113 cm
  • Largeur de l'élément de 62 cm
  • Cadre en acier revêtu de poudre
  • Coude d'évacuation PP DN 80 ajustable en profondeur

Domaines d'application: Le GROHE Rapid SL est adapté pour une installation en pré-mur ou en cloison autoportante et est idéal pour les habillages secs. Grâce aux raccords d'objet fixés, il est facile à installer.

Avantages:

  • Montage individuel facile
  • Ajustement rapide et verrouillage en hauteur pour une installation sans problème
  • Technologie GROHE EcoJoy® pour une consommation d'eau efficace

Fiche technique
GROHE
38994000
Exécution
pour WC suspendu. petits espaces
série
Rapide SL
dimensions
L: 62 P: max 15 H: 113cm
chat Commentaires (0)